Kombinált rozsdamentes hűtő-/fagyasztószekrény

Cikkszám: COMBICF700INOX

A termék bekerült az összehasonlításba.

A termék törölve lett az összehasonlításból.

Leírás

A kombinált hűtőszekrény 2x2 db GN 2/1 méretű polccal, két külön szabályozható hűtőtérrel (1 hűtő és 1 fagyasztó), rozsdamentes acél külsővel és belsővel, állítható lábakkal, elektronikus hőfokszabályozással, digitális hőfokkijelzéssel, automatikus olvadékvíz elpárologtatással, önzáródó ajtóval, ventilációs hűtéssel és zárral rendelkezik.
Polcok száma: 4 db
Polcok max. terhelhetősége: 30 kg
Hűtőközeg: R134a/R404a
Hűtéstartomány: (+25°C, 60% Rh) +1 ... +10 / -18 ... -20 °C
Hűtés típusa: ventilációs
Hőfokszabályzó: digitális

*A hűtési adatok 60% levegő páratartalom és 25°C-os környezeti hőmérsékletre vonatkoznak, ettől eltérő körülmények esetén a hűtési teljesítmény változhat!

Részletes adatok

Cikkszám COMBICF700INOX
Márka TC
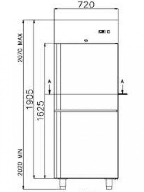
Szélesség 740 mm
Mélység 830 mm
Magasság 2090 mm
Elektromos teljesítmény 0.65 kW
Feszültség 230 V
Bruttó súly 175 kg

Ajánlatkérés